Startseite
Immobilienangebote
Licht, Lage, Lebensqualität - Sonnenverwöhnter Altbautraum am Kiehlufer

Licht, Lage, Lebensqualität - Sonnenverwöhnter Altbautraum am Kiehlufer

12059 Berlin

Objekt-ID:K57WE30

475.000 €

Kaufpreis

Objektdaten

Preise

Kaufpreis

475.000 €

Hausgeld

243 €

Käuferprovision

3,57

Provisionshinweis

zzgl. 3,57 % Provision inkl. 19% MwSt

Informationen

Provisionspflichtig

Flächen

Wohnfläche

ca. 100,28 

Zimmer

4

Zustand und Bauart

Baujahr

1900

Unterkellert

Ja

Räume, Flure und Etagen

Etage

4

Etagen

5

Schlafzimmer

3

Badezimmer

1

Ausstattung

Küche

Einbauküche

Fahrstuhl

Personen

Beschreibung

Am Kiehlufer – direkt am idyllischen Neuköllner Schifffahrtskanal – zeigt sich das Berliner Lebensgefühl von seiner schönsten Seite: lebendig, vielseitig und voller Orte für Begegnung, Gespräche und Genuss. Das historische Wohnhaus aus dem Jahr 1908 wurde 2020–2021 aufwendig saniert und dabei behutsam modernisiert. Der klassische Berliner Altbau erstrahlt nun in neuem Glanz – ergänzt durch ein neu ausgebautes Dachgeschoss, zwei moderne Aufzüge, einen großzügig gestalteten Innenhof und ein prachtvolles Eingangsportal, das Geschichte und Gegenwart stilvoll verbindet. Architektur mit Charakter: Loggien, Balkone, große Fenster mit traditioneller Sprossenteilung und der markante Spitzgiebel verleihen der Fassade ein abwechslungsreiches, harmonisches Erscheinungsbild. Auch die Treppenhäuser wurden liebevoll nach historischem Vorbild restauriert und vermitteln schon beim Betreten den unverwechselbaren Charme klassischer Berliner Altbauten – kombiniert mit zeitgemäßem Wohnkomfort. Die Wohnungen strahlen den unverwechselbaren Charme klassischer Berliner Altbauten aus – mit hohen Decken, edlen Holzdielen, stilvollem Stuck und originalen Kassettentüren, die an die Handwerkskunst vergangener Zeiten erinnern. Große Holzfenster lassen viel Licht herein und unterstreichen das besondere Wohngefühl. Ein Highlight sind die neuen Balkone und Terrassen im Gartenhaus, die ein harmonisches Zusammenspiel von historischem Flair und modernem Komfort schaffen. Die Einheiten präsentieren sich in unterschiedlichen Zuständen und werden im aktuellen Ist-Zustand verkauft – ein einzigartiges Stück Berliner Wohnkultur mit viel Potenzial für die Zukunft.

Ausstattung

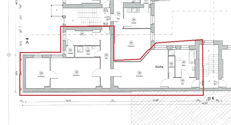
Diese außergewöhnlich schöne Altbauwohnung befindet sich in einem aufwendig sanierten Gründerzeithaus und vereint den klassischen Charme der Gründerzeit mit zeitgemäßem Wohnkomfort. Die Wohnung ist bequem über einen Aufzug erreichbar. Typische Altbaudetails wie hohe Decken, großzügige Raumproportionen, originale Dielenböden, stilvolle Stuckelemente sowie große Fensterflächen verleihen der Wohnung eine besondere Atmosphäre und ein lichtdurchflutetes Wohngefühl. Die Wohnung verfügt über drei Zimmer sowie einen großzügigen Wohn- und Essbereich, der ideal für modernes Wohnen und geselliges Beisammensein geeignet ist. Ergänzt wird der Grundriss durch eine praktische Abstellkammer und ein Badezimmer. Insgesamt befindet sich die Wohnung in einem sehr gepflegten Zustand und bietet eine gelungene Kombination aus historischem Flair und moderner Funktionalität.

Lage

Hier am Kiehlufer schlägt das kreative Herz Berlins. Zwischen Start-ups, charmanten Cafés, szenigen Bars und beliebten Restaurants entfaltet sich ein urbanes Lebensgefühl voller Energie und Vielfalt. Der Kiez ist bunt, lebendig und ein faszinierender Treffpunkt für alle, die Authentizität, Inspiration und den echten Berliner Lifestyle schätzen. Seine Attraktivität verdankt der Standort nicht nur der besonderen Atmosphäre, sondern auch der Nähe zu den bekanntesten Hotspots der Stadt: East Side Gallery, Mercedes-Benz Arena, Badeschiff und Freischwimmer liegen alle im Umkreis von nur drei Kilometern und prägen das moderne Gesicht Berlins. Ebenso schnell erreichbar sind der weitläufige Treptower Park, zahlreiche Sport- und Freizeitmöglichkeiten sowie der Berliner Tierpark. Direkt um die Ecke laden beliebte Adressen wie das Frühstückscafé Nah am Wasser, Crazy Bastard Kitchen, Mmaah oder das eins44 zum Verweilen und Genießen ein. Dank der zentralen Lage, der hervorragenden Verkehrsanbindung und der Nähe zu Universitäten, City, touristischen Attraktionen und Nahversorgungsangeboten zählt das Kiehlufer heute zu den spannendsten und begehrtesten Wohnlagen Berlins – ein Ort, der urbanen Puls und Lebensqualität perfekt vereint. Das Haus befindet sich im Millieuschutz-/ Sanierungsgebiet Hertzbergplatz/Treptower Str

12059 Berlin

Die Karte dient lediglich als Orientierungshilfe und stellt nicht die exakte Lage dar. Die vollständige Adresse erhalten Sie bei uns.

Grundrisse

Energieausweis

Energiedaten

Baujahr

1900

Energieausweistyp

Bedarf

Energieeffizienzklasse

E

Wesentlicher Energieträger

Gas

Befeuerungsart

Gas

Heizungsart

Etagenheizung

Energieeffizienz

A+

A

B

C

D

E

F

G

H

0

30

50

75

100

130

160

200

250

Endenergiebedarf

133 kWh/(m²a)

Sie haben Interesse an dieser Immobilie?

Drucken

Robert Rahn

RAHN & COMPANY REAL ESTATE UG

Übersicht